DE Shaw & Co
Conference
Conference
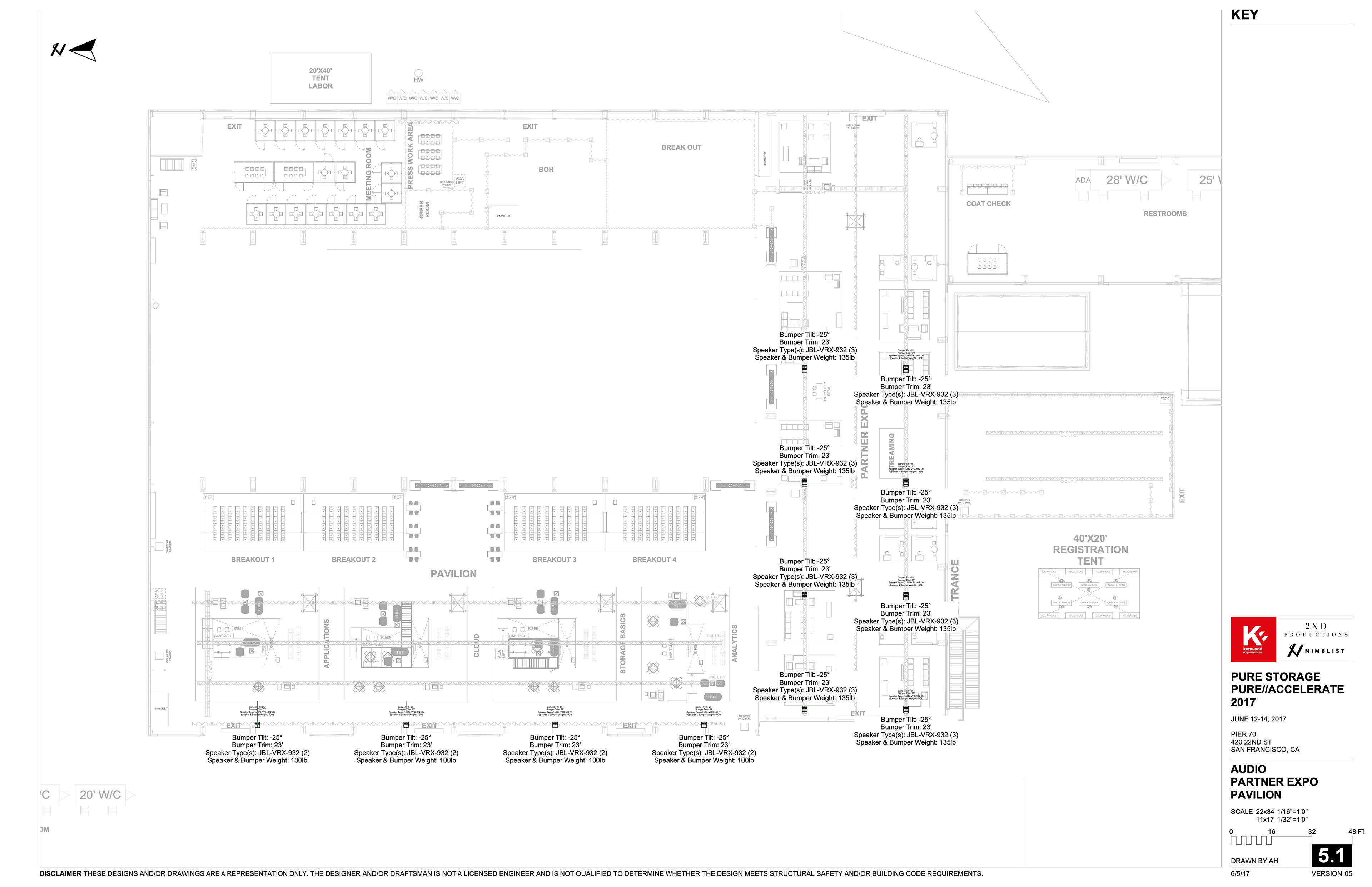
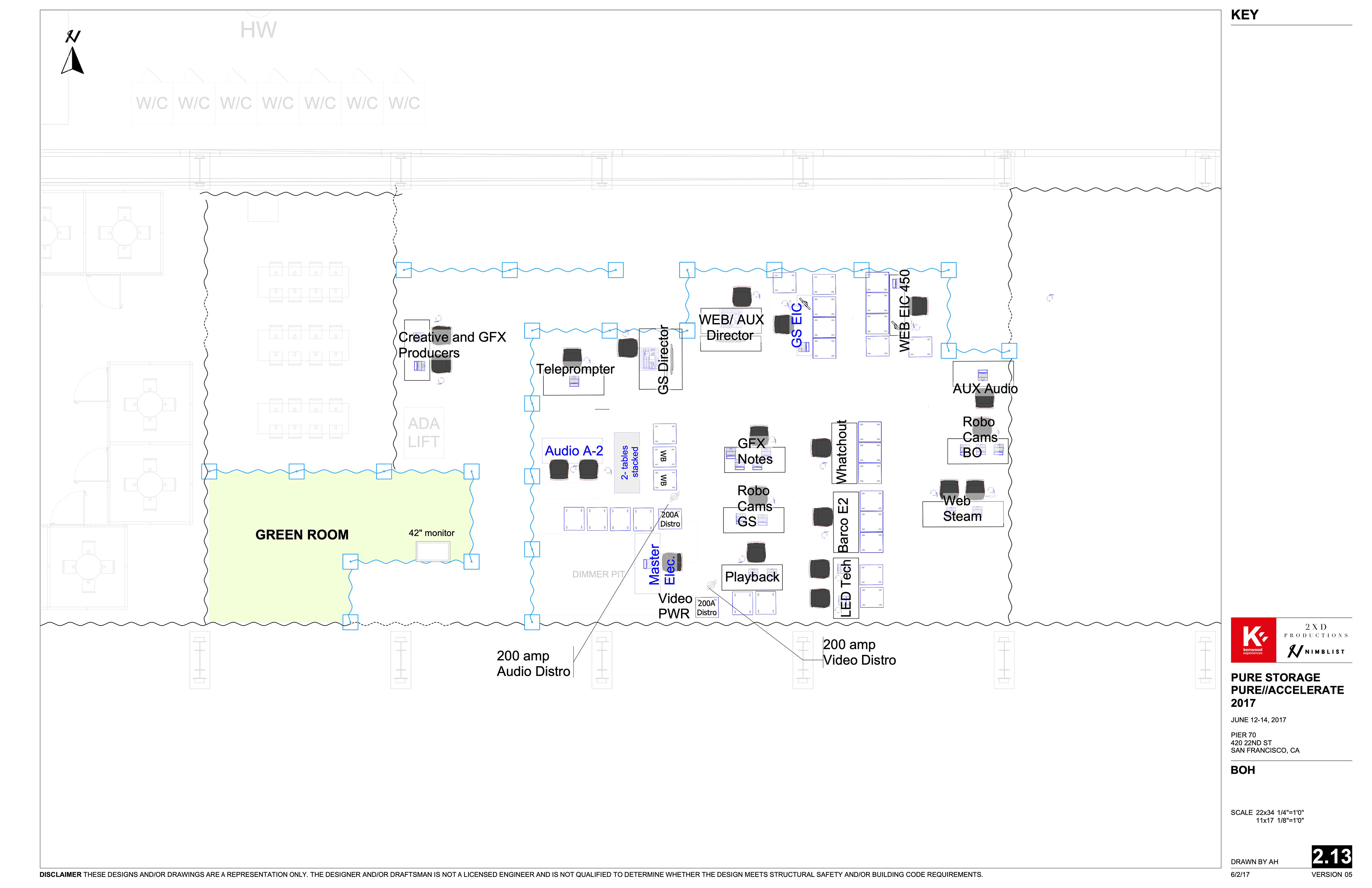
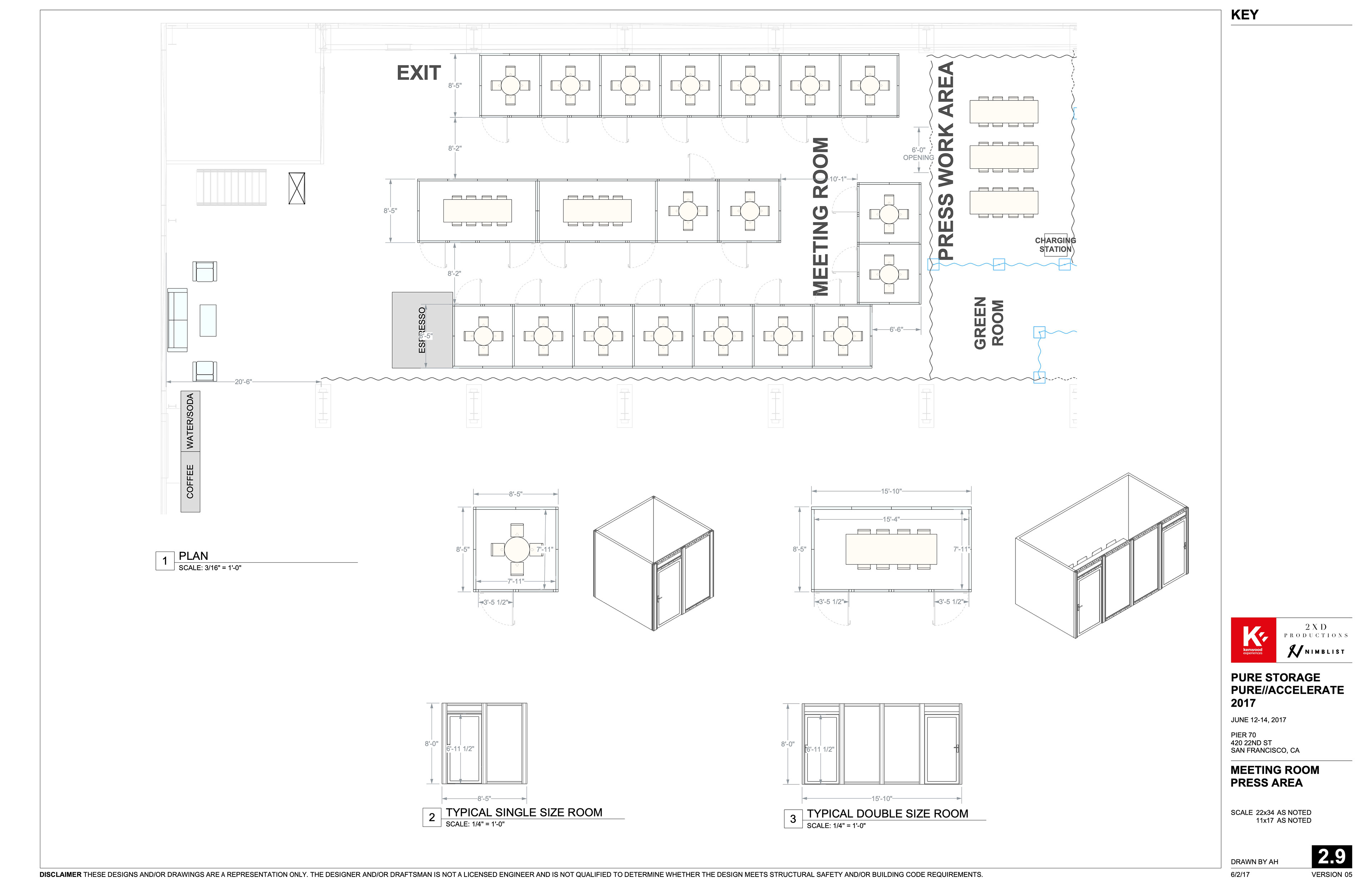
 PURE STORAGE
PURE // ACCELERATE 2017
PURE // ACCELERATE 2017
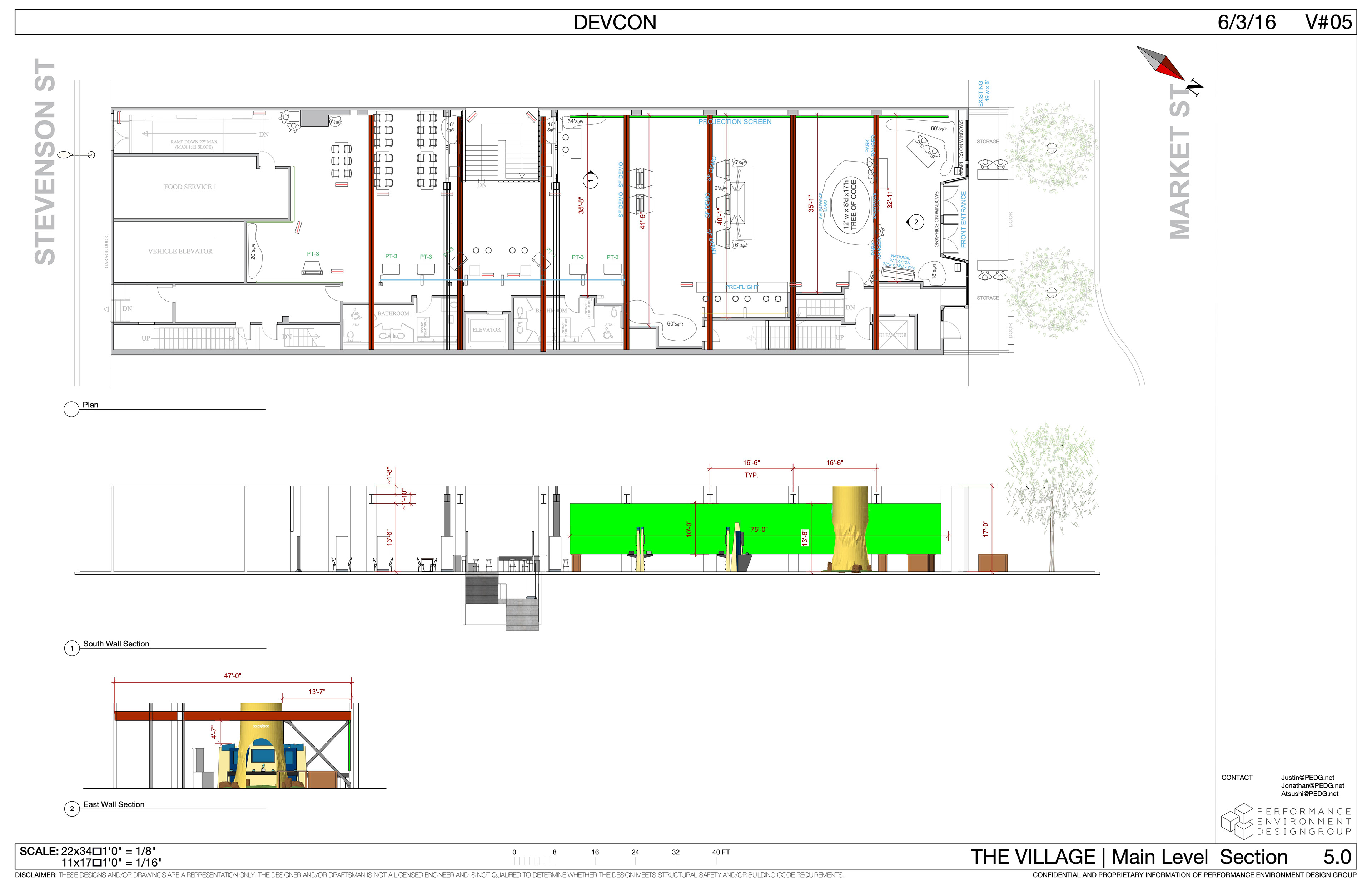
DEVCON 2016